¿Perdido?

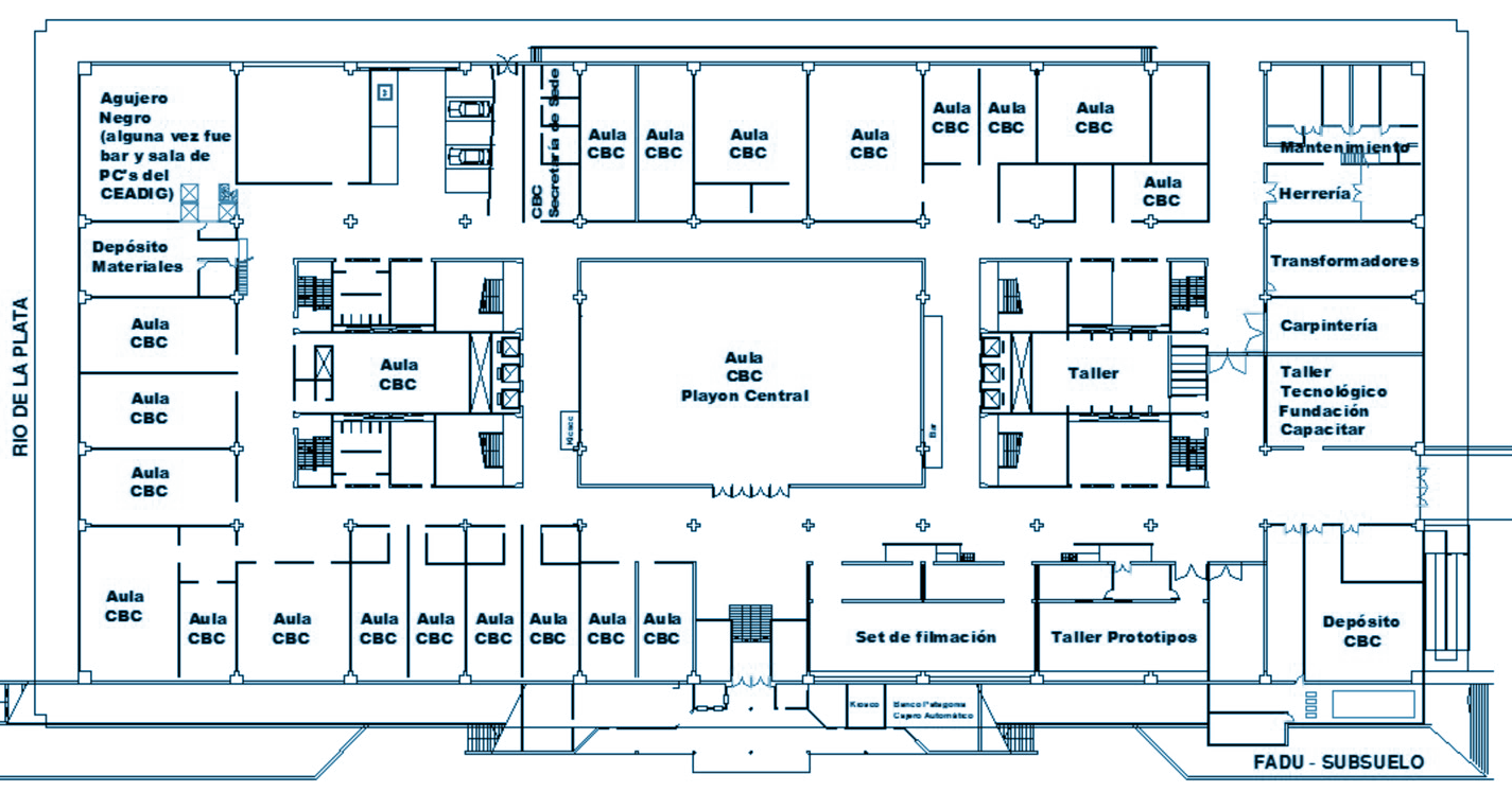
  • SUBSUELO
  • PLANTA BAJA
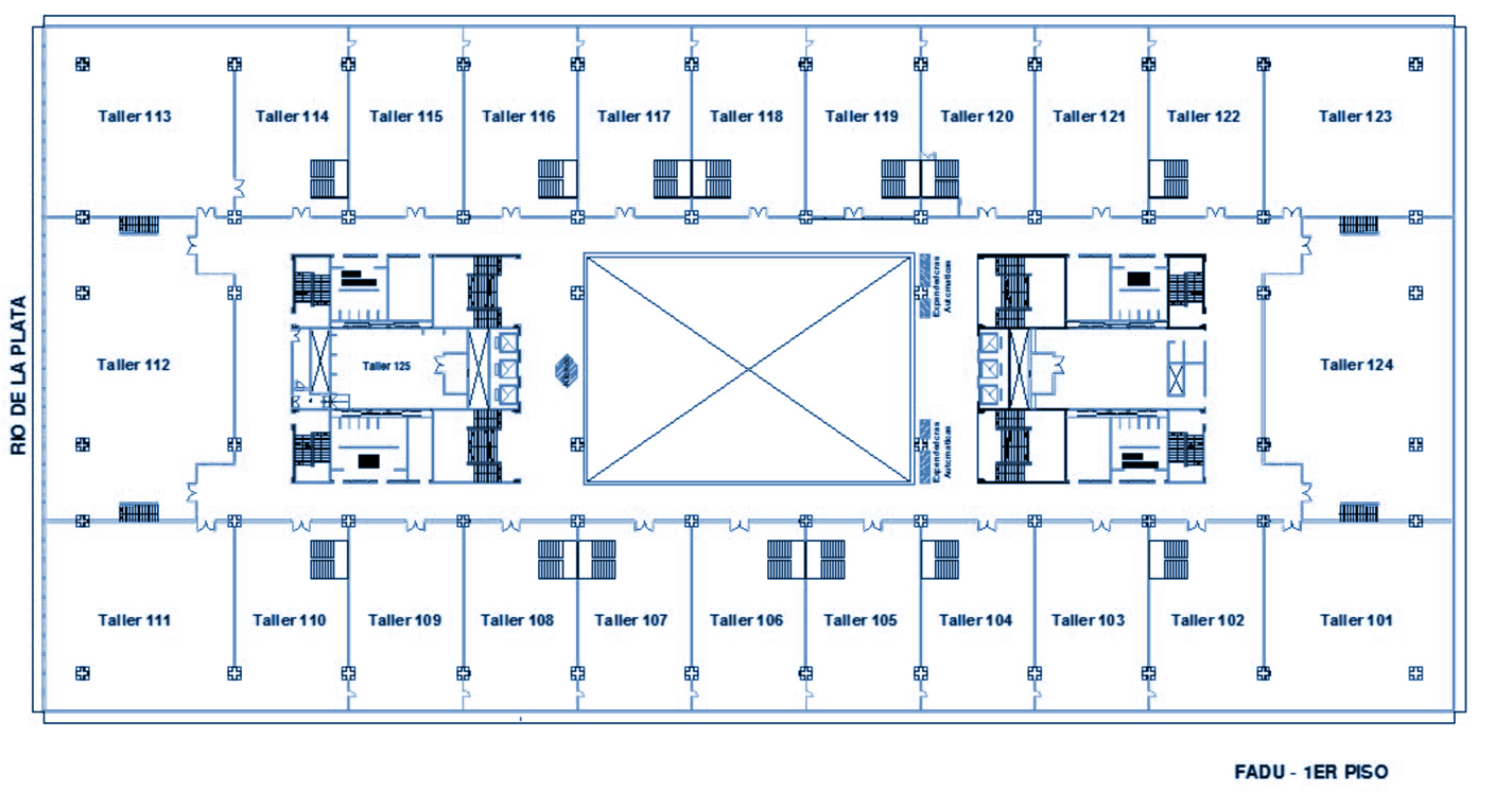
  • PRIMER PISO
  • ENTRE PISO
  • SEGUNDO PISO
  • TERCER PISO
  • CUARTO PISO